藤堂産業

藤堂産業

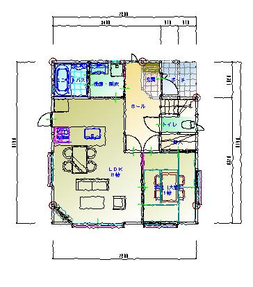
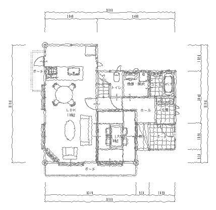
住宅平面図集NO1

平面図集です、ご覧いただきイメージつくりにご役立ください。